If you’re starting a building project, you’ve probably come across a range of terms for architectural documents. Two of the most common — and most often confused — are sketch plans and construction drawings. While they might look similar at first glance, they serve very different purposes. Understanding the difference can save you time, money, and frustration during your home-building journey.

Different Expectations for Sketch Plans
I have worked with many clients, and they are all different. Their expectations for sketch plans also vary a lot. Some expect hand-drawn sketchy lines with notes and observations, while others look for a detailed drawing ready to be sent to a contractor. (Once I was even asked for a hand-drawn sketch that the client wanted to enlarge and print out to hang on the wall.) I’m sure there are many right ways to do it, and every architect has their own unique approach.
My way is to provide an early-stage design that captures the overall vision for the house. It shows the floor layouts, room sizes, simplified façades, basic dimensions, and a 3D view, but it is not intended to be a full set of technical instructions for builders. Instead, these sketch plans provide a flexible foundation for exploring ideas and getting preliminary price quotes from contractors. They are perfect for the inspiration and planning stage — and I don’t mind redrawing them several times if that leads to a better solution.
Key Decisions Made During the Sketching Phase
In the sketching phase, it is very important to make the big decisions: the overall size of the building, how many rooms it will have, how it is positioned on the site plan, the general shape of the building, its interaction with the surroundings, the entrance, and the balance between private and semi-private areas.
The sketching phase can also turn the table around. For instance, the main structural idea might need to change entirely if the original concept doesn’t match the spirit of the building.

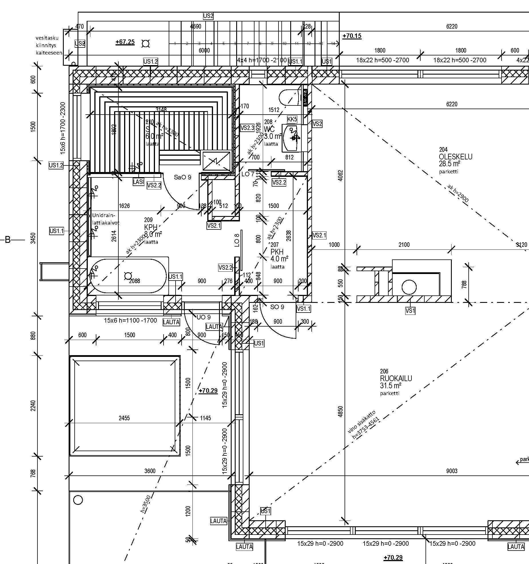
What Construction Drawings Are For
A construction drawing, sometimes called a building permit drawing or working drawing, is a much more detailed set of documents. These include technical specifications, structural details, material notes, building code compliance, and all the information a builder needs to construct the home exactly as designed.
They are drawn to precise scales and often include electrical layouts, plumbing schematics, section details, and notes on insulation, foundation systems, and finishes. Unlike sketch plans, construction drawings carry a greater level of professional responsibility, as they are used directly in both the permit process and actual construction.
Note: If you are aiming for high-level architecture, let the architect do the work at each stage. Sketch plans are for vision — construction drawings are for execution.
Why the Difference Matters
The differences between these two types of plans are most obvious in their level of detail, scale, and intended use. Sketch plans typically work at a conceptual scale (often 1:100) and focus on space planning, aesthetics, and proportion. Construction drawings go deeper, often to 1:50 or even 1:5 for details, showing how each part of the building connects and what materials are to be used.
In short: sketch plans tell you what the building will be, while construction drawings tell you exactly how to build it.
Advantages of Starting with a Sketch Plan
Using a sketch plan as your starting point has several advantages. It allows you to make big-picture decisions early, before investing in the time and cost of a full technical design. You can compare quotes from multiple contractors, test different architectural styles, and make adjustments without redrawing an entire technical package.
For many clients, this approach results in significant cost savings during the bidding process — especially when combined with high-quality PDF and DWG files that contractors can easily review.

A Nordic Perspective on Sketching
As a Finnish architect, I often play with natural light. Finnish and Nordic architecture is largely about using light as an architectural tool. This is something that should already be visible in the sketching phase, clarifying the vision and providing a professional base for the permit drawings and construction documents to follow.
A good sketch plan is always clear, simple, and easy to read.
Final Thoughts
In short, knowing the difference between sketch plans and construction drawings means you can use both tools at the right time. One provides the creative freedom to shape your vision; the other ensures your builder can make that vision a reality.
If you’d like to see examples of Scandinavian-style sketch plans ready for customization, explore our gallery and take the first step toward your new home.
Note on images. All images in the article are original project sketches and designs by Finnish Architect. © Finnish Architect.